2015-06-15 14:57 ArchGo 【大 中 小】【打印】【我要糾錯】

建筑師:2/3/4/
地點:法國庫爾布瓦Courbevoie,France
面積:16000.0 sqm
竣工時間:2014
攝影師:Vincent Fillon

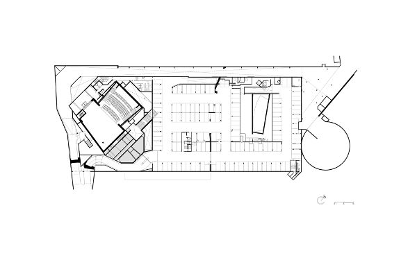
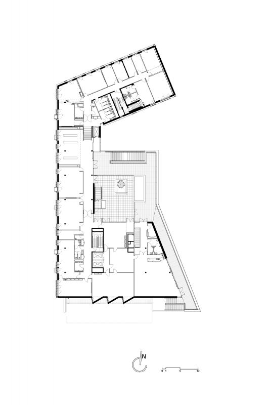
休閑中心項目位于一個文化和體育綜合設施內。

所有建筑都圍繞著體育場建造,同時還要保證視線不受阻礙,能夠從周邊的城市空間透過建筑看到體育場。

法國庫爾布瓦 ——“城市休閑空間”

雖然功能各不相同,但是兩座建筑的設計屬性是相同的,那就是打造“令人愉悅的設施”。俱樂部接待處和旅館朝向體育場方向,在兩座建筑上都能夠俯瞰整個場地。
“活動”大樓是休閑中心的主要組成部分。因此,為了突出它的重要性,建筑師特意辟出一大片空間,建筑的尺寸達到了145 m×45m。

“活動”大樓中的兩個禮堂呈一定角度設置,這一舉措從建筑從形體上表明了對城市理念的支持——邀請人們參與到歡慶活動中來。

體育場周圍的建筑和諧統(tǒng)一,以免打破街區(qū)內的平靜,同時使運動場地的物理邊界更加明顯。

法國庫爾布瓦 ——“城市休閑空間”

法國庫爾布瓦 ——“城市休閑空間”

法國庫爾布瓦 ——“城市休閑空間”

法國庫爾布瓦 ——“城市休閑空間”

法國庫爾布瓦 ——“城市休閑空間”

法國庫爾布瓦 ——“城市休閑空間”

法國庫爾布瓦 ——“城市休閑空間”

法國庫爾布瓦 ——“城市休閑空間”

法國庫爾布瓦 ——“城市休閑空間”

法國庫爾布瓦 ——“城市休閑空間”

法國庫爾布瓦 ——“城市休閑空間”

法國庫爾布瓦 ——“城市休閑空間”

法國庫爾布瓦 ——“城市休閑空間”

法國庫爾布瓦 ——“城市休閑空間”

法國庫爾布瓦 ——“城市休閑空間”

法國庫爾布瓦 ——“城市休閑空間”

法國庫爾布瓦 ——“城市休閑空間”

法國庫爾布瓦 ——“城市休閑空間”

法國庫爾布瓦 ——“城市休閑空間”

法國庫爾布瓦 ——“城市休閑空間”

法國庫爾布瓦 ——“城市休閑空間”
1、凡本網注明“來源:建設工程教育網”的所有作品,版權均屬建設工程教育網所有,未經本網授權不得轉載、鏈接、轉貼或以其他方式使用;已經本網授權的,應在授權范圍內使用,且必須注明“來源:建設工程教育網”。違反上述聲明者,本網將追究其法律責任。
2、本網部分資料為網上搜集轉載,均盡力標明作者和出處。對于本網刊載作品涉及版權等問題的,請作者與本網站聯系,本網站核實確認后會盡快予以處理。
本網轉載之作品,并不意味著認同該作品的觀點或真實性。如其他媒體、網站或個人轉載使用,請與著作權人聯系,并自負法律責任。
3、本網站歡迎積極投稿。