建設工程教育網 > 專業(yè)資料 > 施工方案 > 正文
2012-10-12 10:44 建設工程教育網整理 【大 中 小】【打印】【我要糾錯】
。ㄒ唬┢矫婵刂凭W測設
1.場區(qū)平面控制網布設原則
。1) 平面控制應先從整體考慮,遵循先整體、后局部,高精度控制低精度的原則;
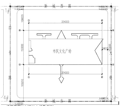
。2) 布設平面控制網首先根據設計總平面圖,現場施工平面布置圖見圖1 所示;
。3) 選點應選在通視條件良好、安全、易保護的地方;圖1 現場施工平面布置圖
。4)樁位用混凝土保護,需要時用鋼管進行圍護,并用紅油漆作好測量標記。

……
詳情請下載附件:泰達某廣場工程施工方案
1、凡本網注明“來源:建設工程教育網”的所有作品,版權均屬建設工程教育網所有,未經本網授權不得轉載、鏈接、轉貼或以其他方式使用;已經本網授權的,應在授權范圍內使用,且必須注明“來源:建設工程教育網”。違反上述聲明者,本網將追究其法律責任。
2、本網部分資料為網上搜集轉載,均盡力標明作者和出處。對于本網刊載作品涉及版權等問題的,請作者與本網站聯系,本網站核實確認后會盡快予以處理。
本網轉載之作品,并不意味著認同該作品的觀點或真實性。如其他媒體、網站或個人轉載使用,請與著作權人聯系,并自負法律責任。
3、本網站歡迎積極投稿。