監(jiān)理工程師答疑精華:計算E工作總時差
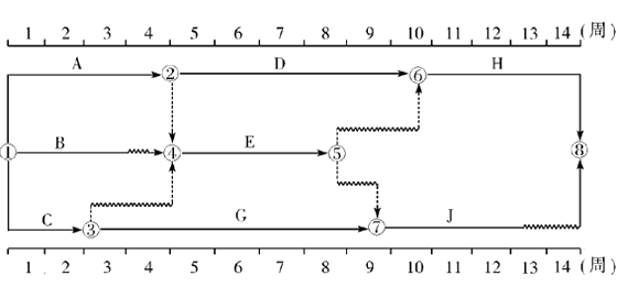
【提問】E工作總時差是怎么算出來的?虛工作5-7需要計算總時差嗎TE5-7=2+1=3,E工作總時差TE4-5=3+0=3,B工作總時差TE1-4=3+1=4,對嗎?
【回答】學員cqmjx3358,您好!您的問題答復如下:

雙代號時標網(wǎng)絡圖總時差教材中的計算公式=緊后工作的總時差+本工作與該緊后工作之間的時間間隔所得之和的最小值E與J工作的時間間隔=1,J的總時差=1,兩者的和=2 E與H的時間間隔=2,H的總時差=0.所以E的總時差=2 B的總時差=1,因為B緊后工作D的總時差=0,B與D的時間間隔=1,兩者的和是最小值。
這樣計算起來比較麻煩,需要計算出每個緊后工作的總時差,我總結的簡單的方法如下:
計算哪個工作的總時差,就以哪個工作為起點工作,尋找通過該工作的所有線路,然后計算各條線路的波形線的長度和,波形線長度和的最小值就是該工作的總時差。還是以上面的網(wǎng)絡圖為例,計算E工作的總時差,

以E工作為起點工作,通過E工作的線路有EH和EJ,兩天線路的波形線的和都是2,所以此時E的總時差就是2.再比如,計算C工作的總時差,通過C工作的線路有三條,CEH,波形線的和為4;CEJ,波形線的和為4;CGJ,波形線的和為1,那么C的總時差就是1.
★問題所屬科目:監(jiān)理工程師——建設工程進度控制

掃碼添加老師進群


54:00
30:20
42:06
56:15







