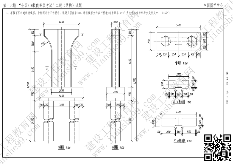
第十六期全國BIM技能等級二級(結構)試題第二題
2021年全國BIM技能等級上半年考試預計在6月份,建設工程教育網(wǎng)為大家整理了第十六期全國BIM技能等級考試BIM二級(結構)試題,希望對BIM考生們有所幫助!
報考指南
閱讀排行
關注更多
立即掃碼添加學習顧問
報考指導
考情速遞
備考計劃
幫你選課


010-82333888







掃碼添加顧問老師
掃一掃下載正保